18710738366

CLASSICAL VILLA DECORATION PROJECT

经典墅装案例

参考过往经典案例,构建您心中的完美家园
您的位置:首页 > 经典墅装案例

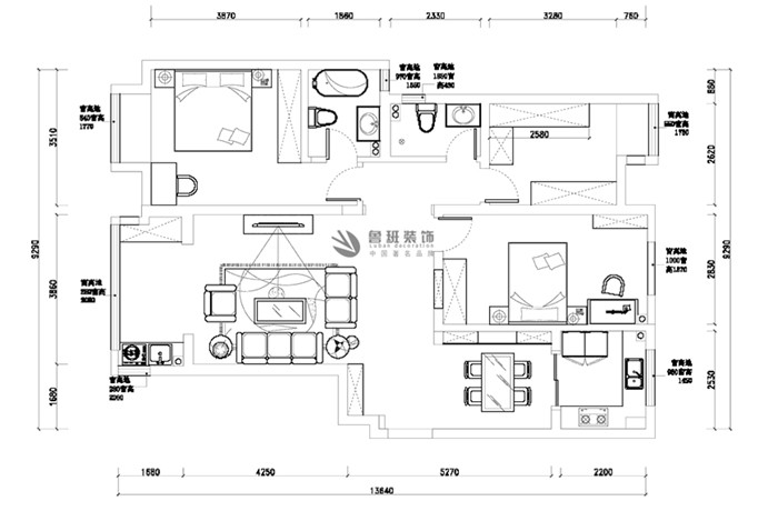
国金华府三居室105平米混搭风格装修效果图

59
施工面积: | MILAN米兰体育·(中国)官方网站风格:混搭风格

国金华府三居室105平米混搭风格装修效果图

59
施工面积: | MILAN米兰体育·(中国)官方网站风格:混搭风格
MILAN米兰体育·(中国)官方网站理念:
MILAN米兰体育·(中国)官方网站说明:本案的装修MILAN米兰体育·(中国)官方网站经过精心的挑选,将风格协调的装修元素进行相互搭配。在两种不同装修风格的搭配的时候,其混搭的黄金比例是3:7。这样主次分明的装修手法,会显得空间更为协调。总之,在混搭装修风格的MILAN米兰体育·(中国)官方网站中,切忌不同装修元素的多、杂、乱。一个空间内,不管是何种装修风格进行相互的混搭,都只能以一种装修风格为主,通过局部或则细节的处理,加以其他装修风格的装修元素,以此凸显空间与装饰的层次感。

预约整装MILAN米兰体育·(中国)官方网站方案服务

*已有【800+】人成功预约

Copyright © 2010-2021 陕西鲁班装饰工程有限公司 版权所有
快速报价
*
*
15000㎡ 整装实景体验馆 免费装修咨询 丨 18710738366
预约MILAN米兰体育·(中国)官方网站