18710738366

CLASSICAL VILLA DECORATION PROJECT

经典墅装案例

参考过往经典案例,构建您心中的完美家园
您的位置:首页 > 经典墅装案例

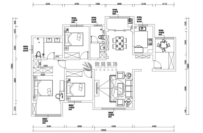
紫薇东进

59
施工面积: | MILAN米兰体育·(中国)官方网站风格:中式风格

紫薇东进

59
施工面积: | MILAN米兰体育·(中国)官方网站风格:中式风格
MILAN米兰体育·(中国)官方网站理念:
本案位于城北含元路北侧的紫薇东进小区,MILAN米兰体育·(中国)官方网站师与业主沟通后将整体的装修的风格定义为新中式,打造出了一所别具东方韵味的时尚家居,既满足了业主对中式文化的喜爱,又将时尚的生活元素融入到装修MILAN米兰体育·(中国)官方网站中,让居住在此的人们更多感受到家的温馨。

预约整装MILAN米兰体育·(中国)官方网站方案服务

*已有【800+】人成功预约

Copyright © 2010-2021 陕西鲁班装饰工程有限公司 版权所有
快速报价
*
*
15000㎡ 整装实景体验馆 免费装修咨询 丨 18710738366
预约MILAN米兰体育·(中国)官方网站