18710738366

CLASSICAL VILLA DECORATION PROJECT

经典墅装案例

参考过往经典案例,构建您心中的完美家园
您的位置:首页 > 经典墅装案例

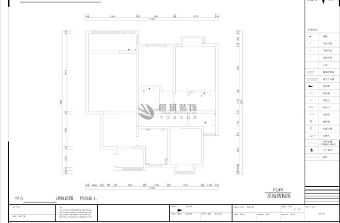
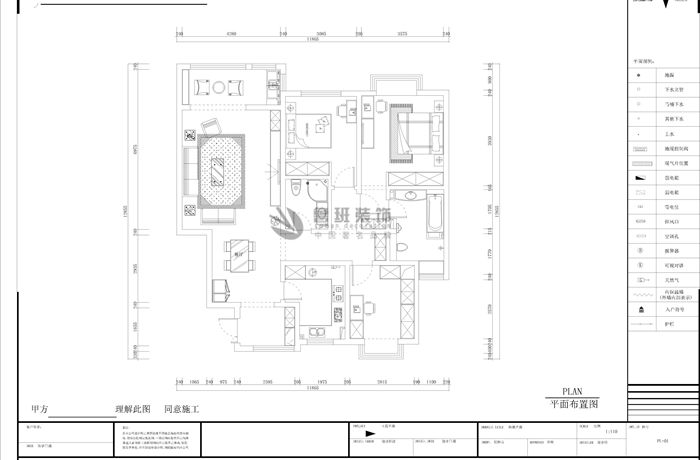
瑞麟君府

59
施工面积: | MILAN米兰体育·(中国)官方网站风格:现代风格

瑞麟君府

59
施工面积: | MILAN米兰体育·(中国)官方网站风格:现代风格
MILAN米兰体育·(中国)官方网站理念:
本案以简洁的表现形式来满足人们对空间环境那种感性的、本能的和理性的需求,这是当今国际社会流行的MILAN米兰体育·(中国)官方网站风格——简洁明快的简约主义。而现代人快节奏、高频率、满负荷,已让人到了无可复加的接受地步。人们在这日趋繁忙的生活中,渴望得到一种能彻底放松、以简洁和纯净来调节转换精神的空间,这是人们在互补意识支配下,所产生的亟欲摆脱繁琐、复杂、追求简单和自然的心理。

预约整装MILAN米兰体育·(中国)官方网站方案服务

*已有【800+】人成功预约

Copyright © 2010-2021 陕西鲁班装饰工程有限公司 版权所有
快速报价
*
*
15000㎡ 整装实景体验馆 免费装修咨询 丨 18710738366
预约MILAN米兰体育·(中国)官方网站