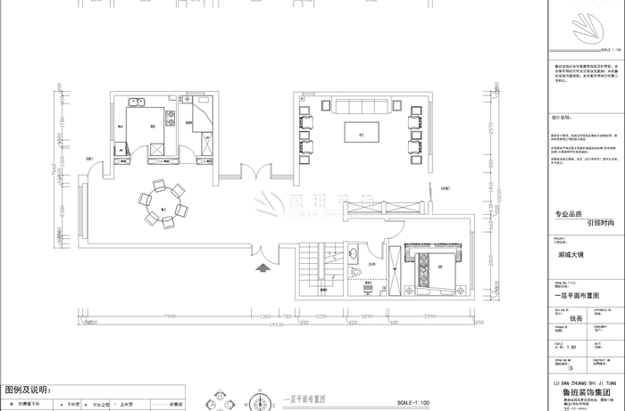
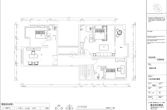
紫汀苑别墅-家装案例--陕西鲁班装修公司;本案主笔MILAN米兰体育·(中国)官方网站师:钱亮;在中国文化风靡全球的现今时代,中式元素与现代材质的巧妙兼柔,明清家具、窗棂、布艺床品相互辉映,再现了移步变景的精妙小品。,新中式风格诞生于中国传统文化复兴的新时期,伴随着国力增强,民族意识逐渐复苏,人们开始从纷乱的“摹仿”和“拷贝”中整理出头绪。在探寻中国MILAN米兰体育·(中国)官方网站界的本土意识之初,逐渐成熟的新一代MILAN米兰体育·(中国)官方网站队伍和消费市场孕育出含蓄秀美的新中式风格。中国实木家装领导品牌——陕西鲁班装饰公司精心打造

18710738366






























