18710738366

CLASSICAL VILLA DECORATION PROJECT

经典墅装案例

参考过往经典案例,构建您心中的完美家园
您的位置:首页 > 经典墅装案例

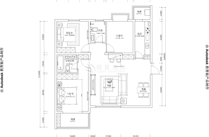
宜家沣都

59
施工面积: | MILAN米兰体育·(中国)官方网站风格:现代风格

宜家沣都

59
施工面积: | MILAN米兰体育·(中国)官方网站风格:现代风格
MILAN米兰体育·(中国)官方网站理念:
宜家沣都-家装案例--陕西鲁班装修公司;本案主笔MILAN米兰体育·(中国)官方网站师:臧坤;重视个性和创造性表现的现代风格不主张追求高档豪华,而着力表现区别于其他住宅的东西。但是简约风格的MILAN米兰体育·(中国)官方网站并没有我们想象中的简单,追求的是空间的实用性和灵活性。居室空间是根据相互间的功能关系组合而成的,而且功能空间相互渗透,空间的利用率达到最高。大户型·豪宅装修专家,中国实木家装领导品牌——陕西鲁班装饰公司精心打造。

预约整装MILAN米兰体育·(中国)官方网站方案服务

*已有【800+】人成功预约

Copyright © 2010-2021 陕西鲁班装饰工程有限公司 版权所有
快速报价
*
*
15000㎡ 整装实景体验馆 免费装修咨询 丨 18710738366
预约MILAN米兰体育·(中国)官方网站