18710738366

CLASSICAL VILLA DECORATION PROJECT

经典墅装案例

参考过往经典案例,构建您心中的完美家园
您的位置:首页 > 经典墅装案例

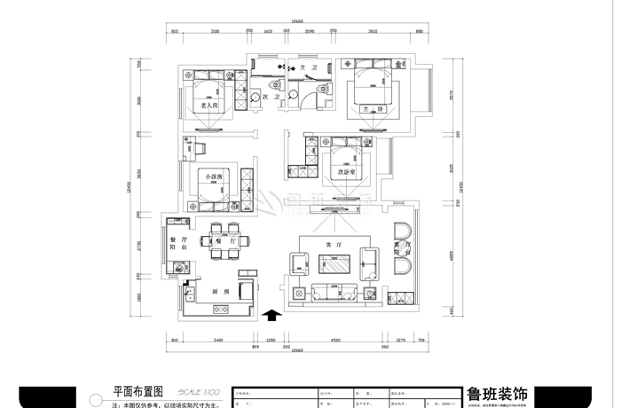
曲江·风景线

59
施工面积: | MILAN米兰体育·(中国)官方网站风格:中式风格

曲江·风景线

59
施工面积: | MILAN米兰体育·(中国)官方网站风格:中式风格
MILAN米兰体育·(中国)官方网站理念:
曲江·风景线-家装案例--陕西鲁班装修公司,中式风格在MILAN米兰体育·(中国)官方网站上继承了唐代、明清时期家居理念的精华,将其中的经典元素提炼并加以丰富,同时摒弃原有空间布局中等级、尊卑等封建思想,给传统家居文化注入 了新的气息。

预约整装MILAN米兰体育·(中国)官方网站方案服务

*已有【800+】人成功预约

Copyright © 2010-2021 陕西鲁班装饰工程有限公司 版权所有
快速报价
*
*
15000㎡ 整装实景体验馆 免费装修咨询 丨 18710738366
预约MILAN米兰体育·(中国)官方网站