18710738366

CLASSICAL VILLA DECORATION PROJECT

经典墅装案例

参考过往经典案例,构建您心中的完美家园
您的位置:首页 > 经典墅装案例

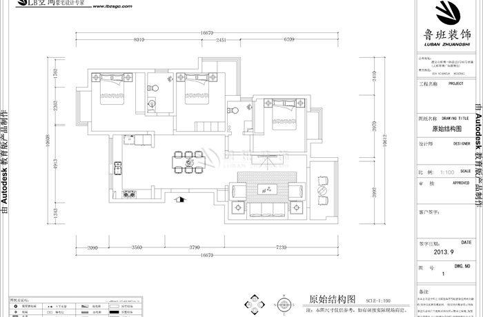
曲江香都

59
施工面积: | MILAN米兰体育·(中国)官方网站风格:中式风格

曲江香都

59
施工面积: | MILAN米兰体育·(中国)官方网站风格:中式风格
MILAN米兰体育·(中国)官方网站理念:
本案例通过成熟巧妙的手法,以恰到好处为原则,通过材料的选择,颜色的搭配,线条及光线的运用,把现代、中式、欧式多种元素相互渗透、融合,勾勒出空间的经典韵味。使空间满足其使用功能的同时,引入文化内涵,深入细化,在空间对比关系中彰显出整体空间的大气、庄重,形成一场多元素风格相结合的完美演绎。

预约整装MILAN米兰体育·(中国)官方网站方案服务

*已有【800+】人成功预约

Copyright © 2010-2021 陕西鲁班装饰工程有限公司 版权所有
快速报价
*
*
15000㎡ 整装实景体验馆 免费装修咨询 丨 18710738366
预约MILAN米兰体育·(中国)官方网站